«г. Москва, Варшавское ш, дом №141»
Ресивер РВ 430/10: характеристики
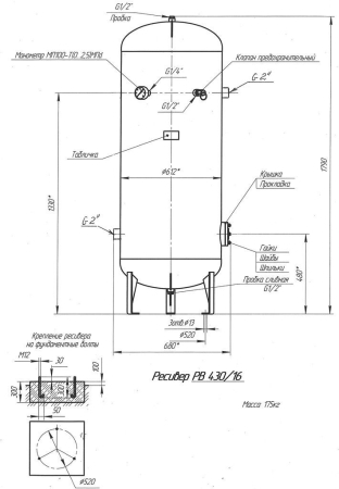
Конструкция ресивера РВ 430/10 обеспечивает возможность проведения технического освидетельствования, обслуживания, ремонта, контроля состояния отдельных узлов и соединений. Манометр позволяет контролировать давление при обслуживании, а предохранительный клапан обеспечивает дополнительную безопасность эксплуатации. Благодаря высокому качеству материалов и подтвержденной расчетами прочности, ресивер может эксплуатироваться с заданными рабочими характеристиками в течение всего срока службы. Наружное покрытие - полиэфирная порошковая краска RAL 5010. Расчетный срок службы 10 лет. Расчетное число циклов нагружения 4,9 х 104.
Принцип работы
Сжатый воздух от компрессора по воздухопроводу через специально оборудованное отверстие поступает в ресивер. Попав внутрь, сжатый воздух расширяется; изменение скорости воздушного потока приводит к охлаждению его и выделению капельной влаги и масла. Присутствие капельной влаги и масла в сжатом воздухе обусловлено, во-первых, влажностью атмосферного воздуха, поступающего для сжатия в компрессорную головку; и, во-вторых, способом смазки деталей шатунно-поршневой группы. Полученный конденсат сливают через сливную пробку.
Требования охраны окружающей среды для ресиверов не предъявляются, так как они при испытании, хранении, транспортировании, эксплуатации и утилизации не приносят вреда окружающей природной среде и здоровью человека.
Бежецкий завод АСО более восьмидесяти лет производит воздухосборники объёмом от 10 до 900 литров для сжатого воздуха давлением до 25 атм. Ресиверы окрашиваются на автоматической итальянской линии порошковой окраски. Каждый ресивер в процессе изготовления проходит полный комплекс обязательных испытаний и контроль качества, что гарантирует полную безопасность при эксплуатации. Продольный шов и кольцевые сварные соединения подвергаются контролю методом ультразвуковой дефектоскопии. Каждый ресивер подвергается гидравлическому испытанию на прочность и плотность; пневматическому испытанию на герметичность. Бежецкие воздухосборники отличаются высоким качеством, надежностью, простотой использования и обслуживания. Для подбора ресивера свяжитесь со специалистом отдела продаж.
Наличие
Отзывы на
ресивер РВ 430/10
Как купить
Для покупки товара в нашем интернет-магазине выберите понравившийся товар и добавьте его в корзину. Далее перейдите в Корзину и нажмите на «Оформить заказ» или «Быстрый заказ».
Когда оформляете быстрый заказ, напишите ФИО, телефон и e-mail. Вам перезвонит менеджер и уточнит условия заказа. По результатам разговора вам придет подтверждение оформления товара на почту или через СМС. Теперь останется только ждать доставки и радоваться новой покупке.
Оформление заказа в стандартном режиме выглядит следующим образом. Заполняете полностью форму по последовательным этапам: адрес, способ доставки, оплаты, данные о себе. Советуем в комментарии к заказу написать информацию, которая поможет курьеру вас найти. Нажмите кнопку «Оформить заказ».
Отложенные товары
Вы можете добавить нужный товар в список отложенных с помощью кнопки «Отложить».
Например, если вы не уверены в покупке товара, то его удобнее добавить в понравившиеся, чтобы в случае положительного решения заново его не искать.
Список отложенных товаров отображаются в корзине. Для перехода в данный раздел необходимо нажать на соответствующую иконку в шапке сайта или перейти по данной ссылке.
Вы можете выбрать один из вариантов оплаты:
Оплата наличными или банковской картой при самовывозе
Для юридических и физических лиц. Предоставляется товарный чек.
Данный вид оплаты доступен при самовывозе из магазина.
Безналичная оплата по счету
Для юридических и физических лиц. На почту клиента будет отправлен счет для оплаты. Предоставляется полный пакет документов.
Оплата банковской картой через интернет
Для физических лиц. Вы можете запросить у менеджера ссылку, по которой можно будет перейти и оплатить заказ.
Доставка по Туле
Условия доставки в Туле
- Самовывоз со склада в Москве (г. Москва, Варшавское ш, дом №141);
- Доставка транспортными компаниями: - до ТК бесплатная доставка в течении 2-3 дней;
- ТК доставляет до г.Тулы по действующим тарифам.
Мы сотрудничаем со всеми транспортными компаниями, в том числе:
- Деловые линии (в рамках партнёрских отношений предоставляют нашим клиентам супервыгодные индивидуальные скидки);
- ПЭК;
- КИТ;
- Энергия;
- Байкал Сервис;
- СДЭК (все запчасти до 30 кг, кроме поршневых блоков).

